Trilocale in vendita

Gorizia, Corso Italia - Centro
€ 95.000
3 locali 3 locali
70 Mq 70 Mq
1 bagno 1 bagno

Trilocale in vendita

Gorizia, Corso Italia - Centro

Descrizione annuncio

CORSO ITALIA - bilocale nello storico palazzo Nale.

Uno degli edifici storici più belli e maestosi di Gorizia. L'ormai quasi centenaria palazzina viene definita dallo storico Sergio Tavano come 'l'architettura goriziana più appariscente tra quelle riconducibili al periodo liberty' il tutto è mitigato da giochi di colore tra le varie parti della facciata.

Il portone d'ingresso è collegato con un affascinate vano scale che con l'unicità della torretta conferiscono allo stabile un aspetto maestoso.

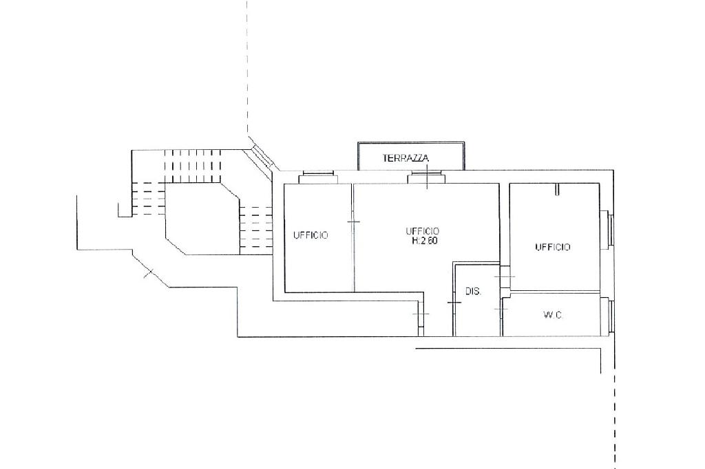
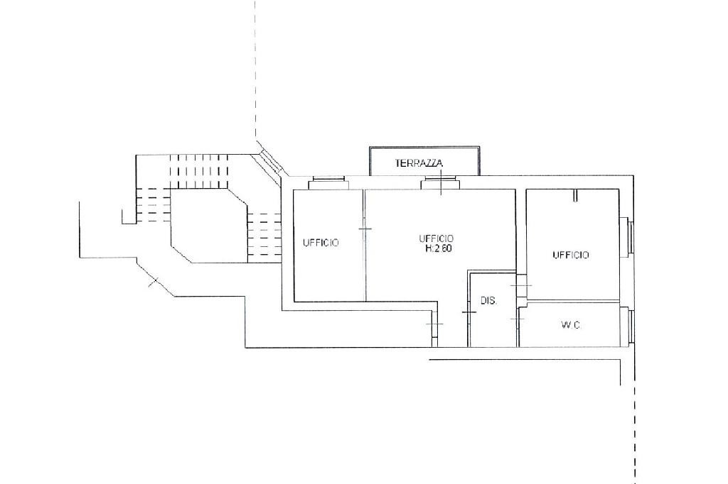
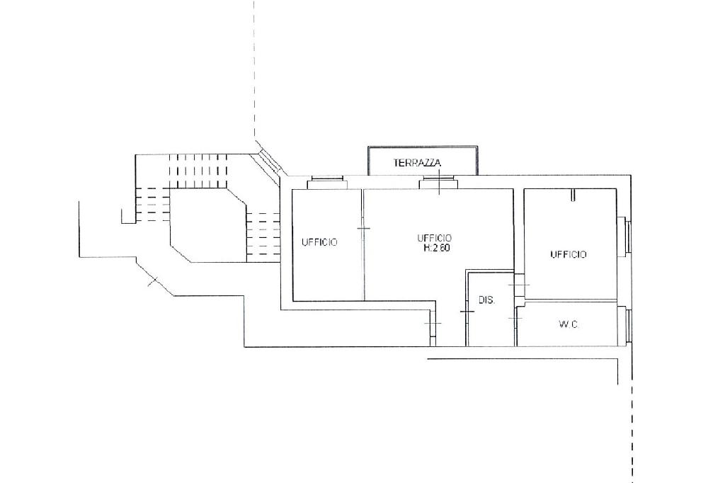
L'appartamento è composto da una luminosa zona giorno con angolo cottura, un bagno completo, una spaziosa camera da letto ed un ulteriore stanza.

L'appartamento al suo interno è in discrete condizioni e risulta abitabile fin da subito.

Le tempistiche per la consegna sono medio lunghe in quanto attualmente è in corso il cambio di destinazione d'uso da ufficio a residenziale.

Per ulteriori informazioni potete contattare lo studio 'Immobiliare San Giovanni srl' al numero 0481-540752 o alla mail gocc1@tecnocasa.it.

Lo studio 'Immobiliare San Giovanni srl' affiliato a Tecnocasa è a disposizione per valutazioni e consulenze per qualsiasi tipologia di immobile.

Mostra tutto

Nelle vicinanze

Trasporto pubblico Trasporto pubblico
stazione di Gorizia Centrale
stazione di Gorizia Centrale
370 m
Nova Gorica
Nova Gorica
2,9 Km
C.so Italia, 215 (S. Giusto)
C.so Italia, 215 (S. Giusto)
70 m
C.so Italia, 244 (S. Giusto)
C.so Italia, 244 (S. Giusto)
90 m
Ricariche auto elettriche Ricariche auto elettriche
Eneldrive Gorizia Stazione
460 m
Best Western Gorizia Palace Hotel
710 m
Scuole Scuole
Istituto Statale d'Istruzione Superiore con lingua d'insegnamento slovena Cankar Vega Zois
540 m
Liceo Scientifico 'Duca degli Abruzzi' - Biennio
670 m
ISIS Galileo Galilei - Enrico Fermi - Nicolò Pacassi
700 m
Liceo scientifico 'Duca degli Abruzzi' - Triennio
730 m
Scuola Secondaria di 1° grado "G.I. Ascoli"
740 m
Farmacia Farmacia
Farmacia Al Corso
600 m
Farmacia Sant'Anna
910 m
Farmacia d'Udine
1,0 Km
Farmacia All'Orso Bianco
1,0 Km
Farmacia Comunale N.1
1,2 Km
Ospedali Ospedali
Ospedali
370 m
Pronto Soccorso Ospedale Gorizia
420 m
Splošna bolnišnica »Dr. Franca Derganca« Nova Gorica
2,5 Km
Supermercati Supermercati
NaturaSì
160 m
In's Mercato
190 m
Coop
580 m
Eurospar
720 m
CONAD
770 m
Negozi Negozi
Negozi
300 m
Panetteria Brotto
590 m
Panetteria Fragonese
800 m
Mik Mak
1,1 Km
OVS
1,2 Km
Bar Bar
MilliBar
140 m
Bar
230 m
Caffe Newport
250 m
Bolle o Fermo
310 m
Barcobaleno
320 m
Ristoranti Ristoranti
Trattoria Al Piron
270 m
Ristorante Locanda 101
350 m
Ristorante Rosenbar
370 m
Pizzeria Tarantella
550 m
Ristorante Majda
700 m
Mostra tutto

Caratteristiche

Rif.:
61136934
Piano:
3 di 3 (ultimo Piano)
Terrazzi:
1
Camere da letto:
1
Arredamento:
Assente
Condizionamento:
Autonomo
Mostra tutto
Prezzo Prezzo
€ 95.000
Rata mutuo Rata mutuo
€ 451 / mese
Proponi il tuo prezzoProponi il tuo prezzo

Classe Energetica

Questo immobile è esente da classe energetica
Anno di costruzione:
1900
Riscaldamento:
Autonomo
Tipo impianto:
Ad aria
Tipo alimentazione:
Aria

Ti interessa visionare l'immobile?

Fissa un appuntamento  Fissa un appuntamento

Richiedi informazioni

Clicca su Leggi per aprire l'informativa
* Questi campi sono obbligatori

Calcola il tuo mutuo

Semplice e senza impegno
Anticipo

( % )
Mutuo

( % )

pochi semplici passi

inserisci i tuoi dati
Questionario completato
Grazie per aver richiesto un appuntamento senza impegno con un nostro Consulente del Credito e Assicurativo.

Hai inserito correttamente tutti i dati necessari e a breve riceverai una e-mail con un link da convalidare per inviare i tuoi dati.
Affiliato
Immobiliare San Giovanni Srl
Via Francesco Crispi, 6/A 34170 Gorizia (GO)

Il nostro staff


  • Luca Cicuttin
    Affiliato

  • Chiara Malfatti
    Collaboratrice

  • Veronica Roiz
    Collaboratrice
Via Francesco Crispi, 6/A 34170 Gorizia (GO)
Zona: Gorizia
Mostra su mappa
Affiliato
Immobiliare San Giovanni Srl
Via Francesco Crispi, 6/A 34170 Gorizia (GO)

2026 Tecnocasa Franchising S.p.A. - P. IVA 08365160152 - Via Monte Bianco 60/A 20089 Rozzano (MI). Ogni agenzia ha un proprio titolare ed è autonoma. Privacy policy | Policy utilizzo | Cookie policy