Trilocale in vendita

Gorizia, Via Nizza
€ 145.000
Prezzo aggiornato
3 locali 3 locali
100 Mq 100 Mq
1 bagno 1 bagno

Trilocale in vendita

Gorizia, Via Nizza

Descrizione annuncio

Via Nizza - Ampio trilocale con doppia terrazza e ascensore in pieno centro città.

Lo stabile, un bel palazzo degli anni '60, in buone condizioni manutentive e dotato di ascensore, si trova a pochi passi dal Corso Italia in una tranquilla via a senso unico con facilità di parcheggio.

L'alloggio risulta molto tranquillo e silenzioso grazie all'esposizione rivolta verso una piacevole corte interna con giardino condominiale.

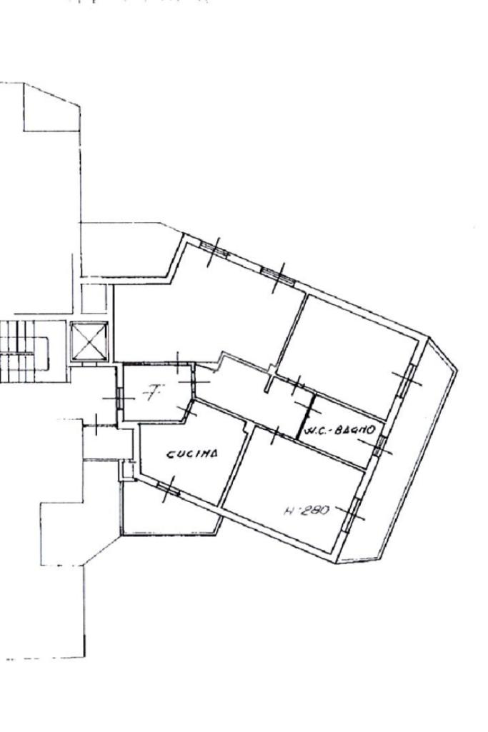
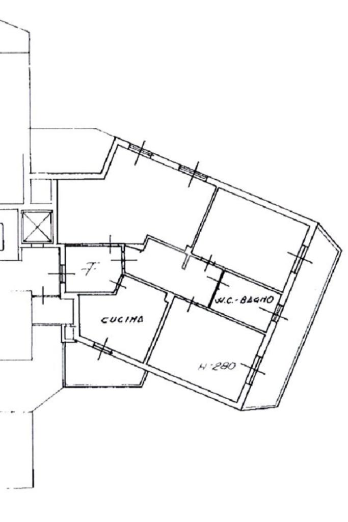
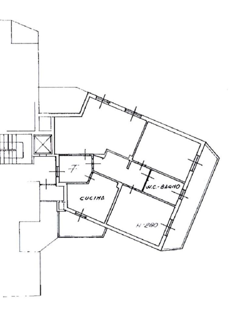
L'appartamento è uno spazioso trilocale composto da un ingresso, una cucina con balcone, un luminoso soggiorno, due camere matrimoniali entrambe con accesso al terrazzo e un bagno a quattro elementi finestrato.

Completa la proprietà una cantina al piano seminterrato.

Le condizioni interne sono buone.

L'appartamento al momento è occupato dal proprietario, i tempi di consegna sono medio- lunghi.

Per ulteriori informazioni contattaci allo 0481-540752 o via mail gocc1

Per vedere in anteprima tutte le nostre proposte seguite le storie sulla nostra pagina instagram tecnocasa_sangiovanni_trieste

Lo studio 'Immobiliare San Giovanni srl' affiliato a Tecnocasa è a disposizione per valutazioni e consulenze per qualsiasi tipologia di immobile.

Mostra tutto

Nelle vicinanze

Trasporto pubblico Trasporto pubblico
stazione di Gorizia Centrale
stazione di Gorizia Centrale
1,4 Km
Nova Gorica
Nova Gorica
1,9 Km
Trasporto pubblico
120 m
V. IX Agosto, 14
V. IX Agosto, 14
180 m
Ricariche auto elettriche Ricariche auto elettriche
Best Western Gorizia Palace Hotel
310 m
Eneldrive Gorizia Stazione
1,5 Km
Scuole Scuole
Università degli studi di Udine
80 m
Liceo delle Scienze Umane e Linguistico "Scipio Slataper"
120 m
Scuola Secondaria di 1° grado "V. LOCCHI"
170 m
Scuola Primaria "E. Frinta"
310 m
Liceo scientifico 'Duca degli Abruzzi' - Triennio
380 m
Farmacia Farmacia
Farmacia All'Orso Bianco
80 m
Farmacia Tramontana
380 m
Al Giardino - Baldini Tiziana
390 m
Farmacia d'Udine
400 m
Farmacia Al Corso
420 m
Ospedali Ospedali
Ospedali
1,3 Km
Pronto Soccorso Ospedale Gorizia
1,3 Km
Splošna bolnišnica »Dr. Franca Derganca« Nova Gorica
2,1 Km
Supermercati Supermercati
Despar
180 m
CONAD
270 m
Coop
470 m
Godina
490 m
In's Mercato
840 m
Negozi Negozi
Mik Mak
110 m
OVS
150 m
Negozi
160 m
Style
260 m
Tigota
280 m
Bar Bar
Metroquadro
80 m
Green Bar
80 m
Cafe House
80 m
Bar Al Corso
90 m
Caffè Teatro
110 m
Ristoranti Ristoranti
Ristorante Tre Soldi Goriziani
80 m
Trattoria Al Falegname
80 m
Pizza Carmen's
120 m
Ristorante Pizzeria Le Moko'
150 m
Wienerhaus
180 m
Mostra tutto

Caratteristiche

Rif.:
61185165
Piano:
1 di 5 con ascensore (Piano medio)
Balconi:
1
Terrazzi:
1
Camere da letto:
2
Arredamento:
Assente
Mostra tutto
Prezzo Prezzo
€ 145.000
Rata mutuo Rata mutuo
€ 689 / mese
Spese annue Spese annue
€ 1.800
Proponi il tuo prezzoProponi il tuo prezzo

Classe Energetica

Questo immobile è esente da classe energetica
Anno di costruzione:
1960
Riscaldamento:
Centralizzato
Tipo impianto:
A radiatori
Tipo alimentazione:
Metano

Prezzo ridotto di €1 (7%%)

Ti interessa visionare l'immobile?

Fissa un appuntamento  Fissa un appuntamento

Richiedi informazioni

Clicca su Leggi per aprire l'informativa
* Questi campi sono obbligatori

Calcola il tuo mutuo

Semplice e senza impegno
Anticipo

( % )
Mutuo

( % )

pochi semplici passi

inserisci i tuoi dati
Questionario completato
Grazie per aver richiesto un appuntamento senza impegno con un nostro Consulente del Credito e Assicurativo.

Hai inserito correttamente tutti i dati necessari e a breve riceverai una e-mail con un link da convalidare per inviare i tuoi dati.
Affiliato
Immobiliare San Giovanni Srl
Via Francesco Crispi, 6/A 34170 Gorizia (GO)

Il nostro staff


  • Luca Cicuttin
    Affiliato

  • Chiara Malfatti
    Collaboratrice

  • Veronica Roiz
    Collaboratrice
Via Francesco Crispi, 6/A 34170 Gorizia (GO)
Zona: Gorizia
Mostra su mappa
Affiliato
Immobiliare San Giovanni Srl
Via Francesco Crispi, 6/A 34170 Gorizia (GO)

2026 Tecnocasa Franchising S.p.A. - P. IVA 08365160152 - Via Monte Bianco 60/A 20089 Rozzano (MI). Ogni agenzia ha un proprio titolare ed è autonoma. Privacy policy | Policy utilizzo | Cookie policy