Negozio in vendita

Gorizia, Viale XXIV maggio - Centro
€ 33.000
1 locale 1 locale
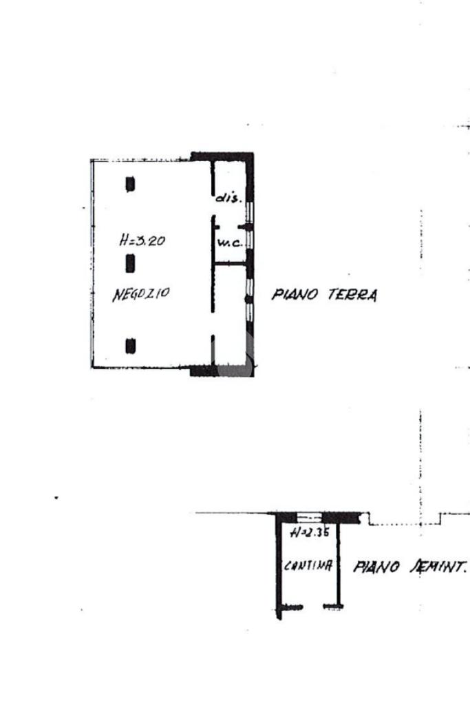
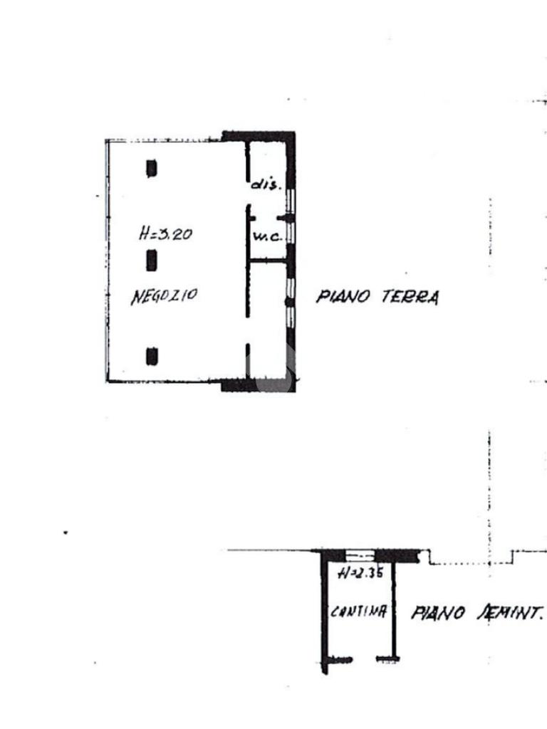
52 Mq 52 Mq
1 bagno 1 bagno

Negozio in vendita

Gorizia, Viale XXIV maggio - Centro

Descrizione annuncio

VIALE XXIV MAGGIO: luminoso locale d'affari con bagno in pieno centro.

Nel cuore del centro di Gorizia, proponiamo in vendita un negozio di 52 mq situato al piano terra.

Questa proprietà, costruita nel 1960, offre un'ampia metratura che si presta a diverse soluzioni commerciali.

Il locale è caratterizzato da grandi vetrate che garantiscono un'ottima luminosità naturale, creando un ambiente accogliente e invitante per i clienti. La presenza di un bagno interno aggiunge praticità e funzionalità allo spazio.

Pur necessitando di alcuni interventi di ristrutturazione, il negozio rappresenta un'opportunità unica per personalizzare gli spazi secondo le proprie esigenze.

La posizione centrale garantisce un'elevata visibilità e un facile accesso, rendendolo ideale per attività che desiderano beneficiare del passaggio pedonale e della vivacità del centro cittadino.

Per ulteriori informazioni contattaci allo 0481-540752 o via mail gocc1

Per vedere in anteprima tutte le nostre proposte seguite le storie sulla nostra pagina instagram tecnocasa_sangiovanni_trieste

Lo studio 'Immobiliare San Giovanni srl' affiliato a Tecnocasa è a disposizione per valutazioni e consulenze per qualsiasi tipologia di immobile.

Mostra tutto

Nelle vicinanze

Trasporto pubblico Trasporto pubblico
stazione di Gorizia Centrale
stazione di Gorizia Centrale
1,3 Km
Nova Gorica
Nova Gorica
2,0 Km
Trasporto pubblico
80 m
C.so Italia, 51/A (Provincia)
C.so Italia, 51/A (Provincia)
110 m
Ricariche auto elettriche Ricariche auto elettriche
Best Western Gorizia Palace Hotel
230 m
Eneldrive Gorizia Stazione
1,4 Km
Scuole Scuole
Scuola Primaria "E. Frinta"
160 m
Liceo scientifico 'Duca degli Abruzzi' - Triennio
220 m
Università degli studi di Udine
260 m
Liceo delle Scienze Umane e Linguistico "Scipio Slataper"
300 m
Liceo Scientifico 'Duca degli Abruzzi' - Biennio
310 m
Farmacia Farmacia
Farmacia All'Orso Bianco
140 m
Farmacia d'Udine
240 m
Farmacia Al Corso
340 m
Farmacia Tramontana
400 m
Al Giardino - Baldini Tiziana
520 m
Ospedali Ospedali
Ospedali
1,2 Km
Pronto Soccorso Ospedale Gorizia
1,2 Km
Splošna bolnišnica »Dr. Franca Derganca« Nova Gorica
2,0 Km
Supermercati Supermercati
Despar
250 m
CONAD
270 m
Godina
400 m
Coop
630 m
In's Mercato
740 m
Negozi Negozi
Negozi
190 m
Mik Mak
240 m
OVS
270 m
Style
380 m
Tigota
410 m
Bar Bar
Bar Nino
60 m
Bar Al Corso
90 m
Cafe House
100 m
Metroquadro
120 m
Bar Torino
140 m
Ristoranti Ristoranti
Pizza Carmen's
70 m
Osteria Ca' di Pieri
100 m
Ristorante Tre Soldi Goriziani
100 m
Pizzeria Ristorante Al Cavallino
130 m
Ristorante Pizzeria Le Moko'
180 m
Mostra tutto

Caratteristiche

Rif.:
61170273
Piano:
Terra di 8
Totale piani:
8
Condizionamento:
Autonomo
Ascensore:
No
Riscaldamento:
Autonomo
Mostra tutto
Prezzo Prezzo
€ 33.000
Rata mutuo Rata mutuo
€ 156 / mese
Proponi il tuo prezzoProponi il tuo prezzo

Classe Energetica

Questo immobile è esente da classe energetica
Anno di costruzione:
1960
Riscaldamento:
Autonomo
Tipo impianto:
Ad aria
Tipo alimentazione:
Aria

Ti interessa visionare l'immobile?

Fissa un appuntamento  Fissa un appuntamento

Richiedi informazioni

Clicca su Leggi per aprire l'informativa
* Questi campi sono obbligatori

Calcola il tuo mutuo

Semplice e senza impegno
Anticipo

( % )
Mutuo

( % )

pochi semplici passi

inserisci i tuoi dati
Questionario completato
Grazie per aver richiesto un appuntamento senza impegno con un nostro Consulente del Credito e Assicurativo.

Hai inserito correttamente tutti i dati necessari e a breve riceverai una e-mail con un link da convalidare per inviare i tuoi dati.
Affiliato
Immobiliare San Giovanni Srl
Via Francesco Crispi, 6/A 34170 Gorizia (GO)

Il nostro staff


  • Luca Cicuttin
    Affiliato

  • Chiara Malfatti
    Collaboratrice

  • Veronica Roiz
    Collaboratrice
Via Francesco Crispi, 6/A 34170 Gorizia (GO)
Zona: Gorizia
Mostra su mappa
Affiliato
Immobiliare San Giovanni Srl
Via Francesco Crispi, 6/A 34170 Gorizia (GO)

2026 Tecnocasa Franchising S.p.A. - P. IVA 08365160152 - Via Monte Bianco 60/A 20089 Rozzano (MI). Ogni agenzia ha un proprio titolare ed è autonoma. Privacy policy | Policy utilizzo | Cookie policy